Tento web používá k poskytování služeb, personalizaci reklam a analýze návštěvnosti soubory cookie. Používáním tohoto webu s tím souhlasíte. Další informace
Úvod

31. 01. 2017 - Návrh programu 01. jednání zastupitelstva (2017)

Pořadí

Usnesení

Název bodu jednání

Předkladatel

Přílohy

1.

Zahájení zasedání, informace o schválení zápisu ze 2./V zasedání Zastupitelstva kraje konaného dne 20. 12. 2016, určení zapisovatelky.

2.

1/17/ZK

Volba ověřovatelů

Martin Půta

3.

2/17/ZK

Volba návrhové komise

Martin Půta

4.

3/17/ZK

Volba volební komise

Martin Půta

5.

Návrh programu

Martin Půta

6.

4/17/ZK

Kontrola plnění usnesení zastupitelstva kraje

Martin Půta

7.

5/17/ZK

Zpráva o činnosti rady kraje za období od 6. prosince 2016 do 16. ledna 2017

Martin Půta

1. 007_P01_dilci_zpravy
2. 007_P02_vypis_z_usn_2_V_RK_06_12_16
3. 007_P03_vypis_z_usn_1_V_mRK_12_12_16
4. 007_P04_vypis_z_usn_2_V_mRK_19_12_16
5. 007_P05_vypis_z_usn_1_RK_10_01_17

8.

6/17/ZK

Změna rozpočtu - rozpočtové opatření č. 20/17 - zapojení vyšších daňových příjmů Libereckého kraje dosažených v roce 2016 do rozpočtu kraje 2017

Ing. Jitka Volfová

1. 008_P01_Priloha_c_1_ZR_RO_c_20_17
2. 008_P02_Priloha_c_2_Bilance_DFLK
3. 008_P03_Priloha_c_3_Prehled_financovani_PO_soc._ve

9.

7/17/ZK

Informace o podmínkách pro poskytování dotací z Dotačního fondu Libereckého kraje v roce 2017 a návrh harmonogramu činností na zpracování změn v poskytování Dotací z Dotačního fondu Libereckého kraje na rok 2018 – aktualizace Statutu Dotačního fondu Libereckého kraje

Ing. Radka Loučková Kotasová

10.

9/17/ZK

Vyhlášení Programu č. 1.1 Podpora jednotek požární ochrany obcí Libereckého kraje, Programu č. 1.2 Podpora Sdružení hasičů Čech, Moravy a Slezska Libereckého kraje resortu kanceláře hejtmana a Programu č. 1.3 Dotace obcím Libereckého kraje na činnost JPO II

Martin Půta

1. 010_P01_Oblast_podpory_PO
2. 010_P02_Vyhlaseni_programu_1_1
3. 010_P03_vzorova_smlouva_1_1_2017
4. 010_P04_Vyhlaseni_programu_1_2
5. 010_P05_vzorova_smlouva_1_2_2017_SDH
6. 010_P06_Vyhlaseni_programu_1_3
7. 010_P07_vzorova_smlouva_1_3_2017

11.

10/17/ZK

Směrnice Zastupitelstva Libereckého kraje č. 1/2013 k odměňování neuvolněných členů Zastupitelstva Libereckého kraje, členů výborů Zastupitelstva Libereckého kraje a členů komisí Rady Libereckého kraje a k řešení náhrady mzdy nebo výdělku ušlého v souvislosti s výkonem funkce neuvolněného člena Zastupitelstva Libereckého kraje ve znění novelizace č. 5 a stanovení náhrady výdělku ušlého v souvislosti s výkonem funkce neuvolněných členů zastupitelstva, kteří nejsou v pracovním nebo jiném obdobném poměru

Ing. Jitka Volfová

2. 011_P01_smernice_ZK_1_2013_novelizace_c_5

12.

8/17/ZK

Návrh na volbu přísedícího Krajského soudu v Ústí nad Labem – pobočka v Liberci

Martin Půta

13.

11/17/ZK

Majetkoprávní operace – darování: nemovitého a movitého majetku v k.ú. Liberec (V-klub)

Ing. Jitka Volfová

1. 013_P01_foto_V_klub
2. 013_P02_tabulka_majetku_Liberec

14.

12/17/ZK

Majetkoprávní operace – darování: pozemku v k.ú. Svor

Ing. Jitka Volfová

1. 014_P01_GP_Svor

15.

13/17/ZK

Majetkoprávní operace – bezúplatné nabytí: pozemků v k.ú. Frýdlant

Ing. Jitka Volfová

1. 015_P01_GP_Frydlant

16.

14/17/ZK

Majetkoprávní operace – neuplatnění předkupního práva zřízeného ve prospěch Libereckého kraje k pozemku v k.ú. Bořkov

Ing. Jitka Volfová

1. 016_P01_mapa_Borkov

17.

15/17/ZK

Majetkoprávní operace - revokace usnesení č. 850/15/RK v bodě 2

Ing. Jitka Volfová

18.

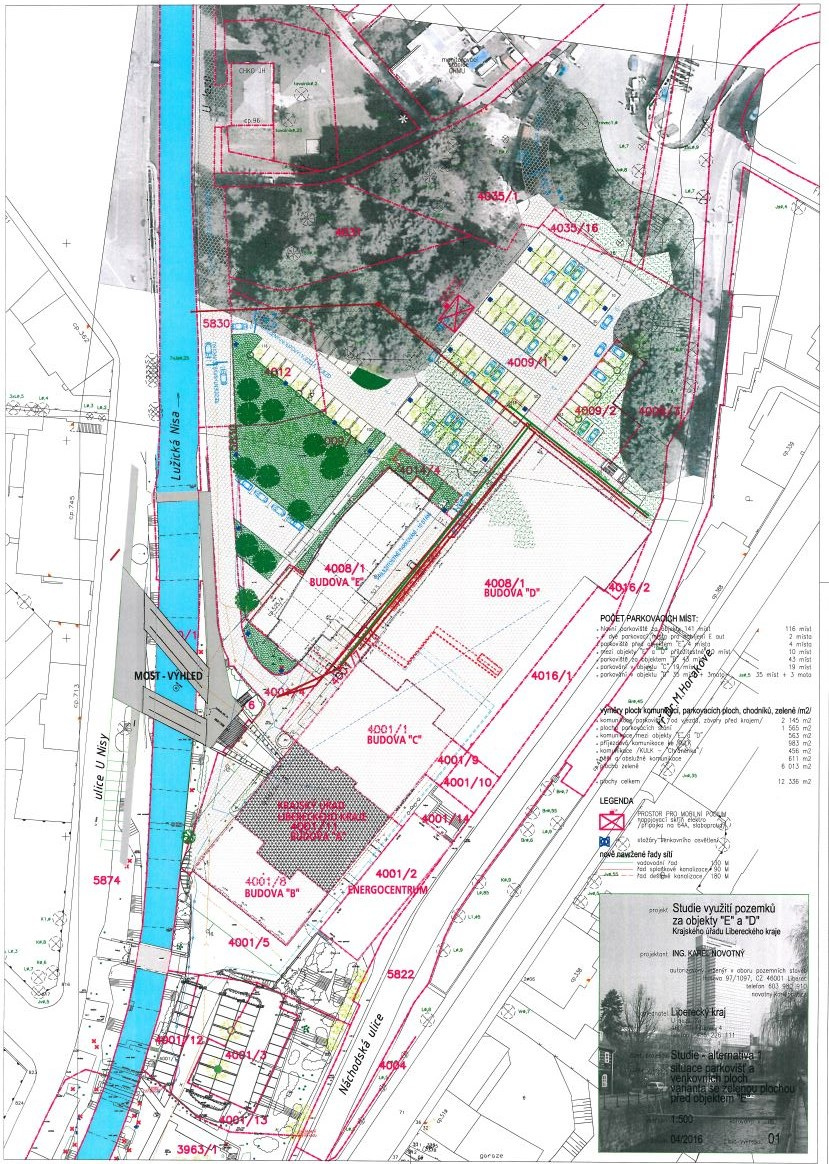
16/17/ZK

Parkovací dům v areálu sídla Libereckého kraje

Marek Pieter

10. 018_P01_mapa
11. 018_P02_Textova_cast
12. 018_P03_celkova_situace
13. 018_P04_celkovy_pohled
14. 018_P05_napojeni_ul_Nachodska
15. 018_P06_podrobna_situace
16. 018_P07_stanovisko_Forum
17. 018_P08_zapis_z_jednani_9_01_2017
18. 018_P09_prezecni_listina_z_jednani_9_01_2017

19.

17/17/ZK

Změna rozpočtu – rozpočtové opatření č. 2/17 – Kofinancování sociálních služeb v r. 2017 z rozpočtu kraje, z prostředků kapitoly 313 – MPSV státního rozpočtu (kapitola 917 05 – transfery)

Mgr. Pavel Svoboda

1. 019_P01_ZR_RO_2_17
2. 019_P02_Popis_zpusobu_rozdeleni_cerpani
3. 019_P03_Informace_MPSV_Smerne_cislo_2017
4. 019_P04_Metodika_pro_kraje_2017
5. 019_P05_Smlouva_dotace_2017
6. 019_P06_Rozhodnuti_MPSV_2017

20.

18/17/ZK

Smlouva o společném postupu při realizaci projektu Integrovaného výjezdového centra pro HZS LK a ZZS LK v Turnově a závazek spolufinancování

MUDr. Přemysl Sobotka

1. 020_P01_Smlouva_OLP_5427_2016

21.

19/17/ZK

Vyhlášení programů v rámci Dotačního fondu Libereckého kraje – oblast podpory kultura, památková péče a cestovní ruch na rok 2017

Ing. Květa Vinklátová

1. 021_P01_vyhlaseni_programu_7_1_2017
2. 021_P02_Vzor_zadosti_o_dotaci_2017
3. 021_P03_priloha_c_1_k_zadosti_7_1
4. 021_P04_priloha_c_2_k_zadosti_7_1
5. 021_P05_Vzor_smlouvy_7_1
6. 021_P06_vzor_cestneho_prohlaseni_DPH_7_1
7. 021_P07_vyhlaseni_programu_7_2_2017
8. 021_P08_Vzor_zadosti_o_dotaci_2017
9. 021_P09_priloha_k_zadosti_c_1_7_2
10. 021_P10_priloha_k_zadosti_c_2_souhlas_vlastnika_FO
11. 021_P11_priloha_k_zadosti_c_2_souhlas_vlastnika_PO
12. 021_P12_Vzor_smlouvy_7_2_FO_nepodnikajici_2017
13. 021_P13_Vzor_smlouvy_7_2_PO_a_podnikajici_2017
14. 021_P14_vzor_cestneho_prohlaseni_DPH_7_2
15. 021_P15_Plna_moc_7_2
16. 021_P16_vyhlaseni_programu_7_3_2017
17. 021_P17_Vzor_zadosti_o_dotaci_2017
18. 021_P18_priloha_k_zadosti_c_1_7_3
19. 021_P19_priloha_k_zadosti_c_2_souhlas_vlastnika_FO
20. 021_P20_priloha_k_zadosti_c_2_souhlas_vlastnika_PO
21. 021_P21_Vzor_smlouvy_7_3_FO_nepodnikajici_2017
22. 021_P22_Vzor_smlouvy_7_3_PO_a_podnikajici_2017
23. 021_P23_vzor_cestneho_prohlaseni_DPH_7_3
24. 021_P24_Plna_moc_7_3
25. 021_P01_po_proj_vyhlaseni_programu_7_1_2017_(21714
26. 021_P07_po_proj_vyhlaseni_programu_7_2_2017
27. 021_P16_po_proj_vyhlaseni_programu_7_3_2017

22.

20/17/ZK

Změna rozpočtu – rozpočtové opatření č. 8/17 - úprava kapitoly 926 07 – Dotační fond, odboru kultury, památkové péče a cestovního ruchu -přidělení dotací v rámci programu 7.5 Poznáváme kulturu

Ing. Květa Vinklátová

1. 022_P01_ZRRO_8_17_DF_7_5
2. 022_P02_vzor_smlouvy_Poznavame_kulturu

23.

21/17/ZK

Memorandum o spolupráci na národním produktu Pískovcová skalní města České republiky

Ing. Květa Vinklátová

1. 023_P01_Memorandum_o_spolupraci

24.

22/17/ZK

Změna rozpočtu - rozpočtové opatření č. 3/17 - alokace použitelných finančních zdrojů minulých rozpočtových období do rozpočtu kraje 2017, navýšení výdajů v kapitole 934 08 - Lesnický fond, odbor životního prostředí a zemědělství a rozhodnutí o poskytnutí dotací z Lesnického fondu Libereckého kraje

Jiří Löffelmann

1. 024_P01_ZR_RO_3_Lesnicky_fond_LK
2. 024_P02_Vliv_uprav_na_celkovou_bilanci_rozpoctu_kr
3. 024_P03_vzorova_smlouva

25.

23/17/ZK

Ekocentrum Oldřichov v Hájích o.p.s. - změny ve správní a dozorčí radě

Jiří Löffelmann

26.

24/17/ZK

Projekt „Snížení energetické náročnosti budovy Obchodní akademie Česká Lípa“ – závazek spolufinancování

Ing. Radka Loučková Kotasová

27.

25/17/ZK

Projekt „Snížení energetické náročnosti budovy školy v ulici Zámecká – Střední škola hospodářská a lesnická, Frýdlant, Bělíkova 1387, příspěvková organizace“ – závazek spolufinancování

Ing. Radka Loučková Kotasová

28.

26/17/ZK

Projekt „Snížení energetické náročnosti budovy jídelny a dílen – Střední škola a Mateřská škola, Liberec, Na Bojišti 15, příspěvková organizace“ – závazek spolufinancování

Ing. Radka Loučková Kotasová

29.

27/17/ZK

Projekt „Snížení energetické náročnosti budovy tělocvičny – Střední škola a Mateřská škola, Liberec, Na Bojišti 15, příspěvková organizace“ – závazek spolufinancování

Ing. Radka Loučková Kotasová

30.

28/17/ZK

Projekt „Snížení energetické náročnosti budovy dílen Svojsíkova – Střední škola a Střední odborné učiliště, Česká Lípa, 28. října 2707, příspěvková organizace“ – závazek spolufinancování

Ing. Radka Loučková Kotasová

31.

29/17/ZK

Projekt „Snížení energetické náročnosti levého a pravého předzámčí – Domov důchodců Sloup v Čechách, příspěvková organizace“ – závazek spolufinancování

Ing. Radka Loučková Kotasová

32.

30/17/ZK

Projekt „Snížení energetické náročnosti budovy ve Dvorské 445 – Centrum intervenčních a psychosociálních služeb Libereckého kraje, příspěvková organizace“ – závazek spolufinancování

Ing. Radka Loučková Kotasová

33.

31/17/ZK

Projekt „Snížení energetické náročnosti budovy D – Léčebna respiračních nemocí Cvikov, příspěvková organizace“ – závazek spolufinancování

Ing. Radka Loučková Kotasová

34.

32/17/ZK

Projekt „Zlepšení tepelně technických vlastností obvodových konstrukcí budov Střední školy a Středního odborného učiliště v České Lípě, pavilon B v ulici 28. října“– závazek spolufinancování

Ing. Radka Loučková Kotasová

35.

33/17/ZK

Poskytnutí dotace Regionální radě regionu soudržnosti Severovýchod a smlouva o poskytnutí dotace z rozpočtu Libereckého kraje na rok 2017

Ing. Radka Loučková Kotasová

1. 035_P01_Zadost_dotace_RRSV
2. 035_P02_Smlouva_poskytnuti_dotace_RRSV

36.

34/17/ZK

Změna rozpočtu – rozpočtové opatření č. 9/17 - rozhodnutí o poskytnutí dotací z Dotačního fondu Libereckého kraje, program 2.7 – Program na podporu činností mateřských center

Ing. Radka Loučková Kotasová

1. 036_P01_Hodnotici_formular_2.7
2. 036_P02_Vliv_uprav_na_celkovou_bilanci_rozpoctu_kr
3. 036_P03_Vzor_smlouvy_o_poskytnuti_dotace
4. 036_P04_Vyhlaseni_programu_MC_2016

37.

35/17/ZK

Mzdová problematika – úprava ceny dopravního výkonu ve smlouvách na přechodné zajištění dopravní obslužnosti (JŘBU)

Marek Pieter

1. 037_P01_material_RK_15.11.2016
2. 037_P02_zadost_LK-MMR_15.9.2016
3. 037_P03_Stanovisko_MMR_25.10.2016
4. 037_P04_LK-MMR_16.11.2016
5. 037_P05_LK-MF_19.11.2016
6. 037_P06_LK-predseda_vlady_29.11.2016
7. 037_P07_stanovisko_MMR_30.11.2016
8. 037_P08_zadost_LK-MMR_12.12.2016
9. 037_P09_odpoved_MMR_19.12.2016
10. 037_P10_odpoved_MF_16.12.2016
11. 037_P11_stanovisko_MMR_04.01.2017
12. 037_P12_stanovisko_HVH_09.01.2017
13. 037_P13_metodika_AKCR_mzdy_1
14. 037_P14_metodika_AKCR_mzdy_2
15. 037_P15_metodika_AKCR_mzdy_3
16. 037_P16_Stanovisko_LIBKRAJ

38.

36/17/ZK

Revokace části usnesení č. 247/16/ZK – odmítnutí účelové neinvestiční dotace z rozpočtu Libereckého kraje na realizaci projektu: Mezinárodní atletický mítink „Jablonecká hala“, jehož předkladatelem je Český svaz atletiky

Petr Tulpa

1. 038_P01_Dopis_CAS_(2160383)

39.

37/17/ZK

Změna zřizovací listiny – Základní škola, Tanvald, Údolí Kamenice 238, příspěvková organizace (rozšíření doplňkové činnosti)

Petr Tulpa

1. 039_P01_Zadost_o_zmenu_ZL_(2160383)
2. 039_P02_Zadost_o_zmenu_ZL_oduvodneni_(2160383)
3. 039_P03_Vypis_zivnostensky_rejstrik_(2160383)
4. 039_P04_navrh_ZL_Tanvald_od_1_3_2017_po_projednani

40.

38/17/ZK

Prominutí penále z odvodu za porušení rozpočtové kázně - Vyšší odborná škola sklářská a Střední škola, Nový Bor, Wolkerova 316, příspěvková organizace

Petr Tulpa

1. 040_P01_zadost_prominuti_penale_VOSsklar_SS_NB_(21
2. 040_P02_zadost_prominuti_penale_VOSsklar_SS_NB_(21
3. 040_P03_zadost_prominuti_penale_Everesta_(2160383)
4. 040_P04_zadost_prominuti_penale_z_castky_Everesta_

41.

39/17/ZK

Smlouva s příspěvkovou organizací Krajská správa silnic Libereckého kraje, Dodatek č. 10 k příkazní smlouvě č. OLP/586/2013

Marek Pieter

1. 041_P01_smlouva_OLP-5426-2016

42.

40/17/ZK

Změna rozpočtu - rozpočtové opatření č. 15/17 – alokace použitelných finančních zdrojů minulých rozpočtových období do rozpočtu kraje 2017 do kapitoly 920 06 – Kapitálové výdaje, odbor dopravy, navýšení příjmů kraje

Marek Pieter

1. 042_P01_tabulky_ZR-RO_15-17

43.

41/17/ZK

Písemné informace

členové rady kraje dle předložených písemných informací

a)

Rozpočtová opatření přijatá v období od 7. 12. 2016 do 10. 1. 2017

Ing. Jitka Volfová

1. 043_a_Rozpoctova_opatreni_prijata_od_01.01.2017_do

b)

Rozhodnutí o poskytnutí dotace pro Zoologickou zahradu Liberec, příspěvkovou organizaci

Martin Půta

1. 043_b_P01_rozhodnuti_o_poskytnuti_dotace_pro_ZOO-L
2. 043_b_P02_01_priloha_1
3. 043_b_P02_02_priloha_2
4. 043_b_P02_03_priloha_3
5. 043_b_P02_04_priloha_4
6. 043_b_P02_smlouva_OLP_21_2017

c)

Stanovení základních náhrad za používání silničních motorových vozidel a stravného včetně stanovení průměrné ceny pohonných hmot pro účely poskytování tuzemských cestovních náhrad na rok 2017

Ing. Jitka Volfová

3. 043_c_Cestovni_nahrady_2017

d)

Postup při sestavování Základní sítě sociálních služeb Libereckého kraje pro období 2018 - 2020

Mgr. Pavel Svoboda

1. 043_d_kosilka_ZK_DOC
2. 043_d_P01_Vyzva_k_podavani_zadosti
3. 043_d_P02_Postup_a_system_hodnoceni_ZS

e)

Informace o kácení dřevin na pozemcích předaných k hospodaření Střední uměleckoprůmyslové škole sklářské, Železný Brod, Smetanovo zátiší 470, příspěvková organizace

Petr Tulpa

1. 043_e_Informace_kaceni_drevin_SUPS_ZB
2. 043_e_P01-17_prilohy_(2160383)

f)

„Žaloba Ministerstva vnitra ve věci stanov společností“

Martin Půta

1. 043_f_zaloba_MVCR

44.

42/17/ZK

Předložení žádosti o dotaci ze Státního fondu životního prostředí na akci „Odstranění nebezpečných odpadů s obsahem PCB ze skladu v obci Dubá – Nový Bernštejn“

Jiří Löffelmann

1. 044_P01_formular_zadosti
2. 044_P02_podrobny_popis_realizace_projektu
3. 044_P03_final
4. 044_P04_final_rozpocet
5. 044_P05_final
6. 044_P06_jmenovani_hejtmana
7. 044_P07_plna_moc
8. 044_P08_scan_Duba
9. 044_P09_scan_Duba
10. 044_P10_Rok_2014_Vykaz_zisku_a_ztraty
11. 044_P11_Rok_2015
12. 044_P12_Rok_2015_Rozvaha_LK
13. 044_P13_Rok_2015_Vykaz_zisku_a_ztraty
14. 044_P14_Rok_2016
15. 044_P15_Rok_2016_Rozvaha
16. 044_P16_Rok_2016_Vykaz_zisku_a_ztraty

45.

43/17/ZK

Změna rozpočtu – rozpočtové opatření č. 30/17 -Rozhodnutí o poskytnutí dotací z Fondu ochrany vod Libereckého kraje na zajištění zásobování pitnou vodou v oblasti zatížené těžbou v dole Turów – dokumentace k územnímu rozhodnutí (DUR)

Jiří Löffelmann

1. 045_P01_ZRR30_tabulky
2. 045_P02a_smlouva_Frydlant_opatreni
3. 045_P02b_smlouva_Frydlant_Bulovka
4. 045_P02c_smlouva_Frydlant_Detrichov

46.

Náměty a připomínky